Top.Mail.Ru
Казань, ул. Островского
Офис продаж: Петербургская, 64
8 (800) 700-57-16

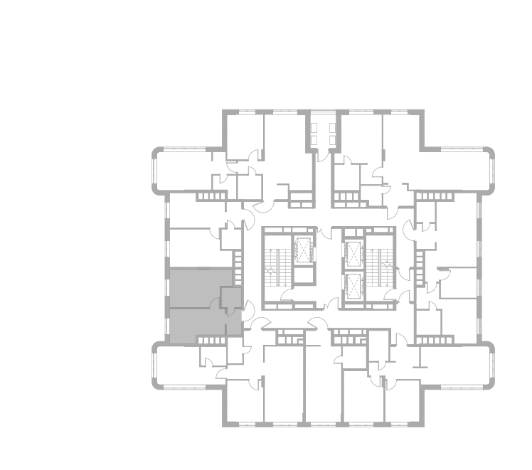
2 КОМНАТНАЯ КВАРТИРА В КАЗАНИ, 69.85М2

Квартира для тех, кто выбирает не квадратные метры, а уровень жизни.
K1-1408
План этажа
Корпус К1 , 14 этаж

Купить двухкомнатную квартиру 69.85 м² в корпусе К1 на 14 этаже в резиденции Barkli Дан — значит выбрать стиль жизни премиум-класса в самом сердце Казани. Просторные резиденции с панорамными окнами, потолками 3.20м и дизайнерской планировкой сочетают эстетику Art Deco и технологичный комфорт. Приватный двор без машин, архитектура из натурального камня и металла, собственная инженерия бизнес-класса и виды на город создают атмосферу абсолютного статуса. Barkli Дан — пространство для тех, кто ценит качество, эстетику и приватность.

Рекомендуем лоты