Top.Mail.Ru
Казань, ул. Островского
Офис продаж: Петербургская, 64
8 (800) 700-57-16

1 КОМНАТНАЯ КВАРТИРА В КАЗАНИ, 47.41М2

Квартира для тех, кто выбирает не квадратные метры, а уровень жизни.
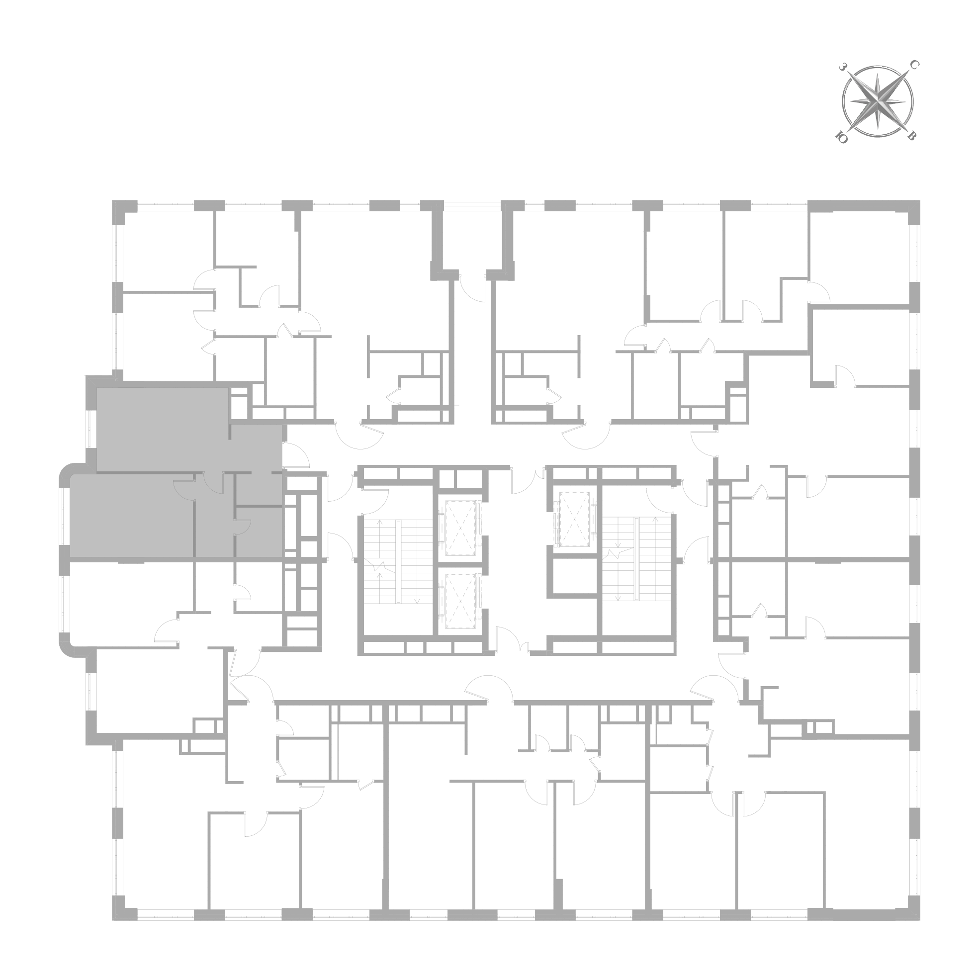
K2-501
План этажа
Корпус К2 , 5 этаж

Купить однокомнатную квартиру 47.41 м² в корпусе К2 на 5 этаже в резиденции Баркли Дан — значит выбрать стиль жизни премиум-класса в самом сердце Казани. Просторные резиденции с панорамными окнами, потолками 3.20м и дизайнерской планировкой сочетают эстетику Art Deco и технологичный комфорт. Приватный двор без машин, архитектура из натурального камня и металла, собственная инженерия бизнес-класса и виды на город создают атмосферу абсолютного статуса. Баркли Дан — пространство для тех, кто ценит качество, эстетику и приватность.

Рекомендуем лоты